Ma.gi Immobiliare Di Gattel Mara
Villa in vendita a Paese
Paese
Zona: Postioma - vicolo Montagnera
€ 550.000
#200 mq
#3
#3
Vedi più foto
Cod. SI 3213
€ 550.000
Classe energetica: A4

Villa in vendita a Paese

Postioma - vicolo Montagnera
200 mq
3
3
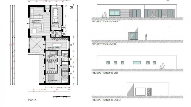
Descrizione

Questa Villa in Vendita a Paese, nella zona di Postioma, è un'ottima opportunità per chi desidera acquistare una casa di prestigio in una posizione tranquilla e comoda ai servizi. Si trova all'interna di un residence di sole tre ville.
Attualmente la Villa si sviluppa su un unico piano, il piano terra, con una superficie interna di 165,00m².
Al suo interno sono presenti 3 camere da letto e 3 bagni. La cucina è a vista e permette di godere di un'ampia zona giorno, ideale per momenti di convivialità con amici e familiari, il che la rende perfetta per una famiglia numerosa. Non manca la lavanderia e il guardaroba dedicato alla camera principale
Inoltre, la Villa è dotata di un box auto singolo e di un'area di circa 40m² per parcheggiare comodamente più veicoli.
All'esterno, la Villa dispone di un giardino privato di 320m² e di uno splendido porticato bioclimatico, perfetto per chi ama la natura e desidera avere uno spazio per attività all'aria aperta.
La Villa è dotata di un sistema di riscaldamento autonomo, alimentato da pannelli fotovoltaici, (10 kwp) che garantisce un basso impatto ambientale e un risparmio energetico notevole. L'impianto a pavimento assicura un riscaldamento uniforme e confortevole in ogni ambiente.
Inoltre, la Villa dispone di un sistema di allarme, per la sicurezza dei suoi abitanti.
La Villa gode di un'ottima esposizione, garantendo una buona luminosità naturale durante tutto il giorno.
In sintesi, questa Villa in Vendita a Paese è una splendida abitazione con finiture di alta qualità, dotata di tutti i comfort moderni e ideale per chi desidera una casa spaziosa, luminosa e comoda ai servizi.
Non perdere l'opportunità di acquistare questa meravigliosa Villa e realizzare il tuo sogno di vivere in una casa di lusso a soli 8 chilometri da Treviso.
Maggiori informazioni in agenzia.
Si precisa che l'indirizzo presente non identifica l'esatta ubicazione dell'immobile questo al fine di tutelare la privacy e la riservatezza del venditore.

  • Villa in vendita a Paese
  • Villa in vendita a Paese
  • Villa in vendita a Paese
  • Villa in vendita a Paese
  • Villa in vendita a Paese
  • Villa in vendita a Paese
  • Villa in vendita a Paese
  • Villa in vendita a Paese
  • Villa in vendita a Paese
  • Villa in vendita a Paese
  • Villa in vendita a Paese
  • Villa in vendita a Paese
  • Villa in vendita a Paese
  • Villa in vendita a Paese
mostra di piùmostra di meno
Caratteristiche
Scopri le caratteristiche di questo immobile
Contattaci


Alcuni immobili che potrebbero interessarti
Villa in vendita a Paese
in Vendita
Paese
Postioma
€ 590.000
Villa in vendita a Paese
Cod. SI 3211
Questa villa in vendita a Paese, nella zona di Postioma, è un'ottima opportunità per chi desidera acquistare una casa di prestigio...
Dettagli
Villa in vendita a Treviso
in Vendita
Treviso
Fuori Mura
€ 270.000
Villa in vendita a Treviso
Cod. SI 3103
Questa casa singola in vendita si trova nella zona San Lazzaro, a pochi minuti dal centro storico di Treviso.La casa è stata costruita...
Dettagli
Villa in vendita a Carbonera
in Vendita
Carbonera
€ 550.000
Villa in vendita a Carbonera
Cod. SI 3202
Circondata dal verde nella caratteristica zona di Carbonera, è in vendita questa villa in chiave moderna.Di nuova realizzazione con...
Dettagli
Villa in vendita a Carbonera
in Vendita
Carbonera
Pezzan
€ 480.000
Villa in vendita a Carbonera
Cod. SI 3214
In zona residenziale di Carbonera proponiamo in vendita una villa di nuova costruzione.La proprietà si sviluppa su un unico livello,...
Dettagli
Ultimo aggiornamento 29/01/2026
×
Codice
Contratto
Scegli dove cercare
Tipologia - multiscelta
Prezzo


Totale mq


Locali minimi
Bagni minimi
Camere minime
Altre opzioni - multiscelta